Une sublime rénovation sur deux étages avec l’excavation d’un sous-sol
Quartier Villeray

Projet Chateaubriand
Type : Résidentiel
Superficie : 1500pi² - 140m²
Localisation : Villeray, Montréal
Année : 2025
Mandat :
- Élaboration de plans complets pour le logement entier
- Recherche et sélection de matériaux et équipements adaptés à l'ensemble du projet.
- Modélisation 3D des espaces pour une visualisation précise.
- Élaboration d'un budget détaillé pour assurer la transparence des coûts.
- Suivi de chantier régulier pour garantir le respect des délais et de la qualité des travaux.
- Coordination avec les entrepreneurs, fabricants et fournisseurs afin d'assurer une collaboration optimale tout au long du projet.
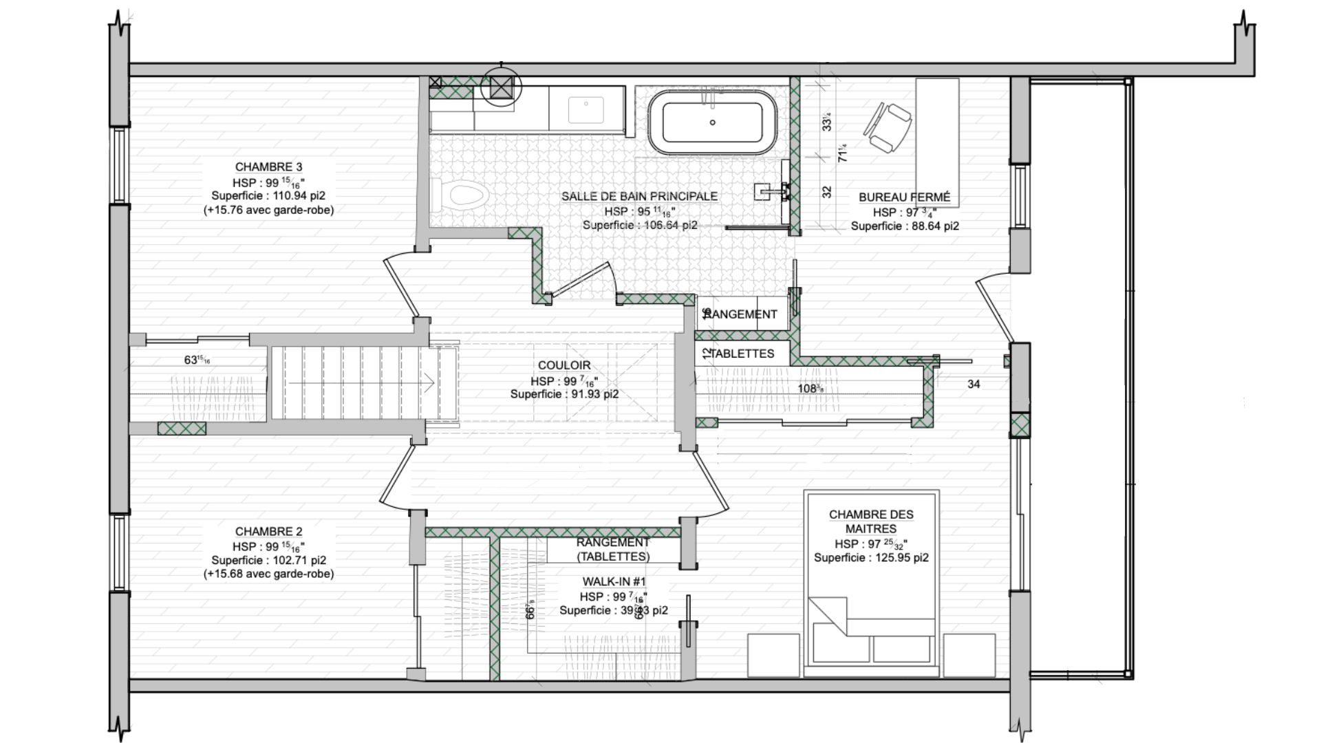
Situé dans le quartier de Villeray à Montréal, ce projet consiste en la transformation complète d’une maison unifamiliale, pensée pour accueillir toute la famille. Déployée sur deux étages avec un sous-sol entièrement excavé, la maison offre désormais quatre chambres ainsi qu’un bureau.
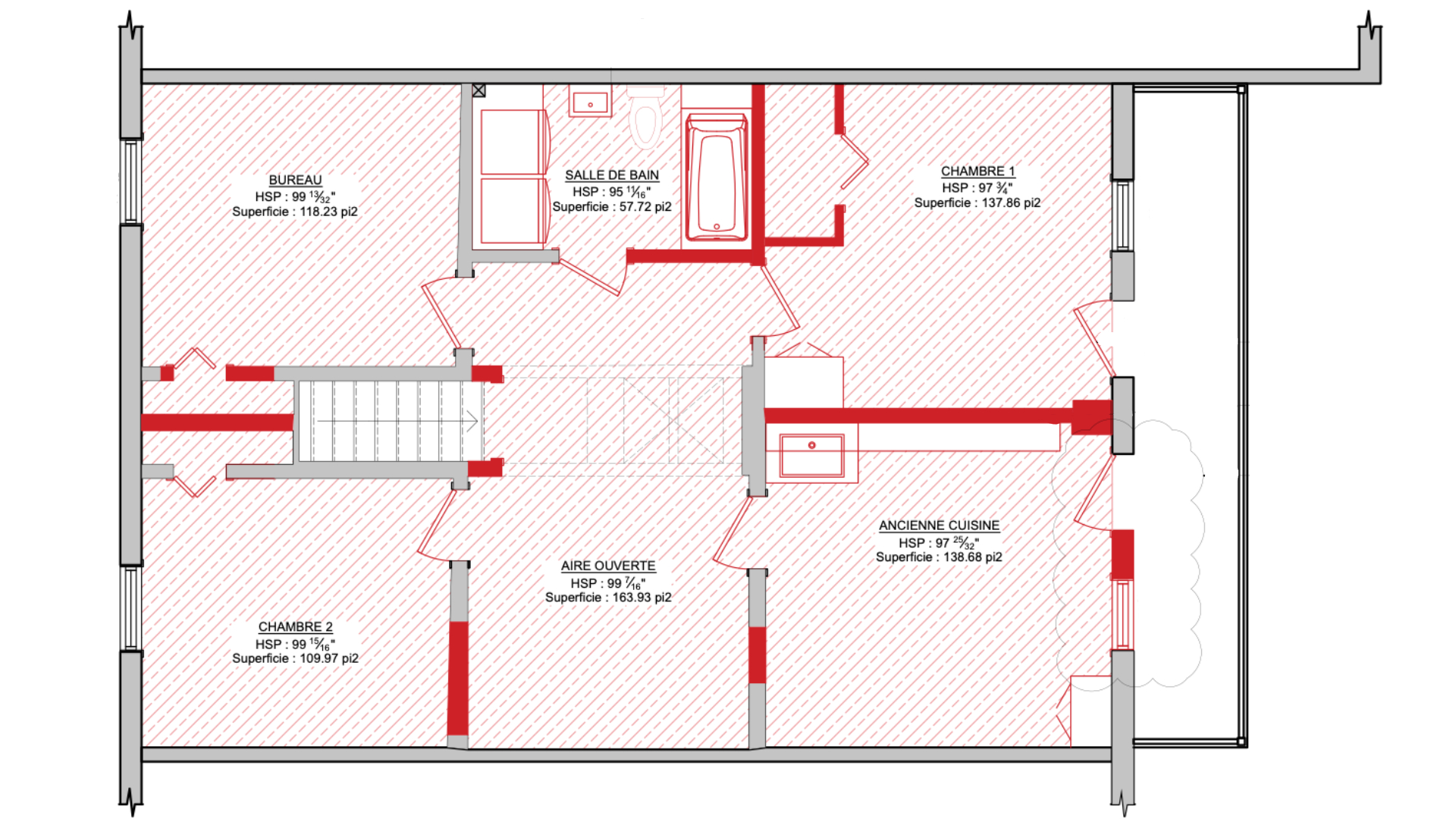
L’intervention majeure a porté sur l’excavation complète du sous-sol, permettant notamment l’aménagement d’une chambre avec salle de bain attenante pour l’adolescent de la famille.
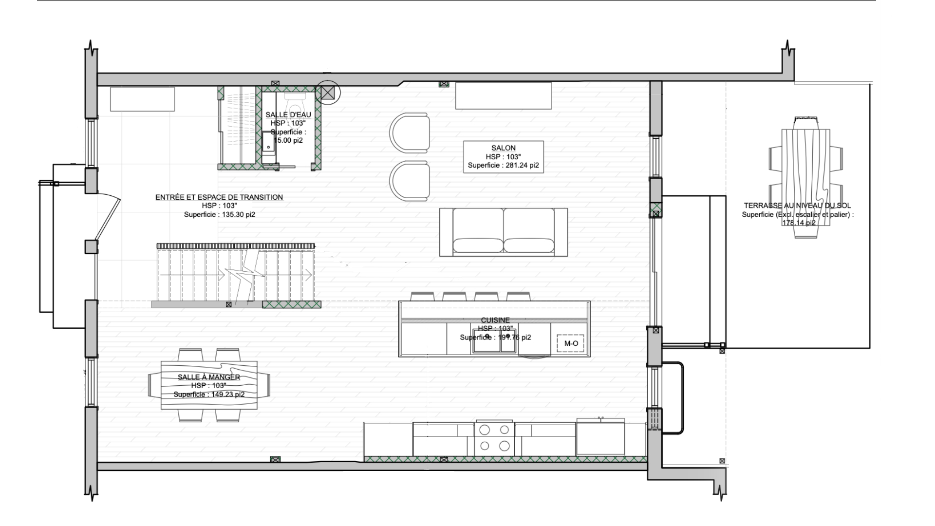
Le rez-de-chaussée s’articule quant à lui autour d’une grande cuisine conviviale, pensée comme le véritable cœur de la maison.
La Cuisine

La cuisine a été entièrement pensée et conçue autour de son nouvel îlot central de 12 pieds linéaires, qui s’affirme comme un véritable espace de rassemblement familial. Les armoires en mélaminé Finsa, en teinte chêne, apportent une chaleur naturelle à la pièce, tandis que le comptoir et le dosseret Desert Silver (Silestone), par leurs veines fines et claires, ajoutent à l’espace une finition plus minérale.
Conçue et fabriquée par l’ébénisterie Crealux, la cuisine possède plusieurs accessoires et systèmes intégrés, tels que des tiroirs à l’anglaise et des rangements à épices, afin de répondre aux spécificités des usages quotidiens.
L'Escalier

L’escalier a été conçu et fabriqué par Boiserie Sir Laurier. Réalisé en chêne rouge, il reprend naturellement l’essence du plancher de chez Mirage, présent dans toute la maison. Élément structurant de l’espace, l’escalier se dissimule partiellement derrière un jeu ajouré et rythmé de lattes de bois, créé par Crealux, assurant une bonne circulation de la lumière tout en remplissant sa fonction de garde-corps.
La salle de bain

La salle de bain principale dispose d’une Wet Room, intégrant douche à l’italienne et baignoire autoportante dans un espace commun et unifié.
Le sol, habillé d’une céramique terracotta, apporte caractère et audace aux espaces. Quant aux murs, ils sont eux parés de tuiles d’inspiration travertin, affichant avec élégance le contraste doux et réfléchi du lieu.
Pour la vanité et la lingerie intégrée, fabriquées par l’ébénisterie Crealux, la finition Finsa apporte naturel et chaleur à l’espace. Une trappe à linge, discrètement intégrée, ajoute à la fonctionnalité de ces éléments. Le comptoir en quartz Fresh Concrete (Caesarstone) complète l’harmonie par sa surface sobre et contemporaine.
La salle d'eau

Dans la salle d’eau, la vanité sur mesure signée Crealux, fini Acacia Choco (Finsa) apporte immédiatement chaleur et caractère à l’espace. Le comptoir en quartz Drift de Hanstone s’intègre avec sobriété et contraste avec le bois. Le regard se tourne ensuite vers la céramique murale : la mosaïque Cristal Blanco d’Italbec qui, d’un jeu commun avec la lumière, apporte texture et élégance à la pièce.
Plan de Démolition et Aménagement - RDC


Plan de démolition et Aménagement - Étage



































